Механика (Детали машин и основы конструирования) – страница 39
Соединения вал – ступица по конусной поверхности с натягом применяются для …
Условие отсутствия сдвига в клеммовом соединении под действием вращающего момента T при диаметре соединения d, коэффициенте трения f описывается выражением
, где F0 – …
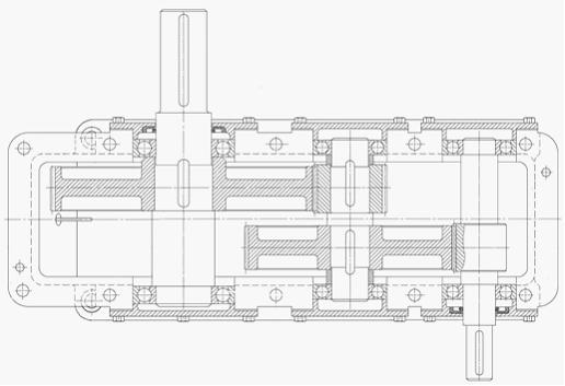
, где F0 – …Основным параметром, определяемым при проектном расчете на контактную прочность изображенных на рисунке зубчатых передач, является …


Реакция окружной силы на шестерне конической передачи для колеса является ____________ силой.
На рисунках изображены компенсирующие муфты: А – пальцевая с металлическими дисками, Б – зубчатая, В – втулочно-пальцевая, Г – цепная. Свойством безлюфтовости обладает муфта, показанная на рисунке …


Для управляемого соединения или разъединения вращающихся валов используется ____________ муфта.





